The Nate launched a competition titled “What Will Hong Kong’s Residential or Office Space Look Like in the Immediate Future?” The Bagua+Bhava Team participated in this competition and proposed a response to this question for the future of Hong Kong and the world. As a result, we were declared the winners of the competition.
在2020年,The Nate 發起了一場關於「香港未來居住或辦公空間將是什麼樣子」的競賽。Bagua+Bhava 團隊提出了一個方案來回答這個關於未來香港乃至全世界的問題,而我們是這次競賽的獲勝者。
A few years later, the pandemic continues to impact the lifestyles of people worldwide. In the post-COVID-19 era, it is likely that the way we live and work will change significantly. In densely populated cities like Hong Kong, where living spaces are typically small, there will still be a need for office spaces, but the concept of these spaces will transform. The answer to this transformation lies in HYBRID WORKING.
疫情問題依然沒有得到解決,它影響著所有人的生活方式。COVID-19後,我們的生活和工作方式會改變嗎?在香港這樣人口密集的城市,居住空間通常很小,辦公空間仍然會需要,但它會是什麼樣子呢?答案是混合工作。

So, what is Hybrid Working? According to FCCinnovation, it means combining office-based work with remote work, such as working from home or another location. As lockdown measures ease, employees are returning to offices, but many of them are not doing so full-time. Instead, they are alternating between their traditional office desk and their home office. Gartner CFO survey reveals that 74% of companies intend to shift some employees to remote work permanently, and McKinsey Research indicates that 30% of companies believe the right cloud collaboration tools can enhance company productivity. Consequently, Hybrid Working is expected to become a prominent trend in the future.
什麼是混合工作?根據 FCCinnovation 的說法,它意味著將辦公室工作與在家工作或其他地點工作相結合。隨著封鎖措施的放寬,員工們開始返回辦公室,但很多人並不全時在辦公室工作,而是在傳統辦公桌和家庭辦公室之間交替工作。Gartner 的首席財務官調查顯示,74%的公司打算永久性地將一些員工轉為遠程工作,而麥肯錫研究則表明,30%的公司認為適當的雲協作工具可以提高公司的生產力。因此,在很大程度上,混合工作將成為未來的新趨勢。
Hybrid Working will change the way that we live and work in three aspects.
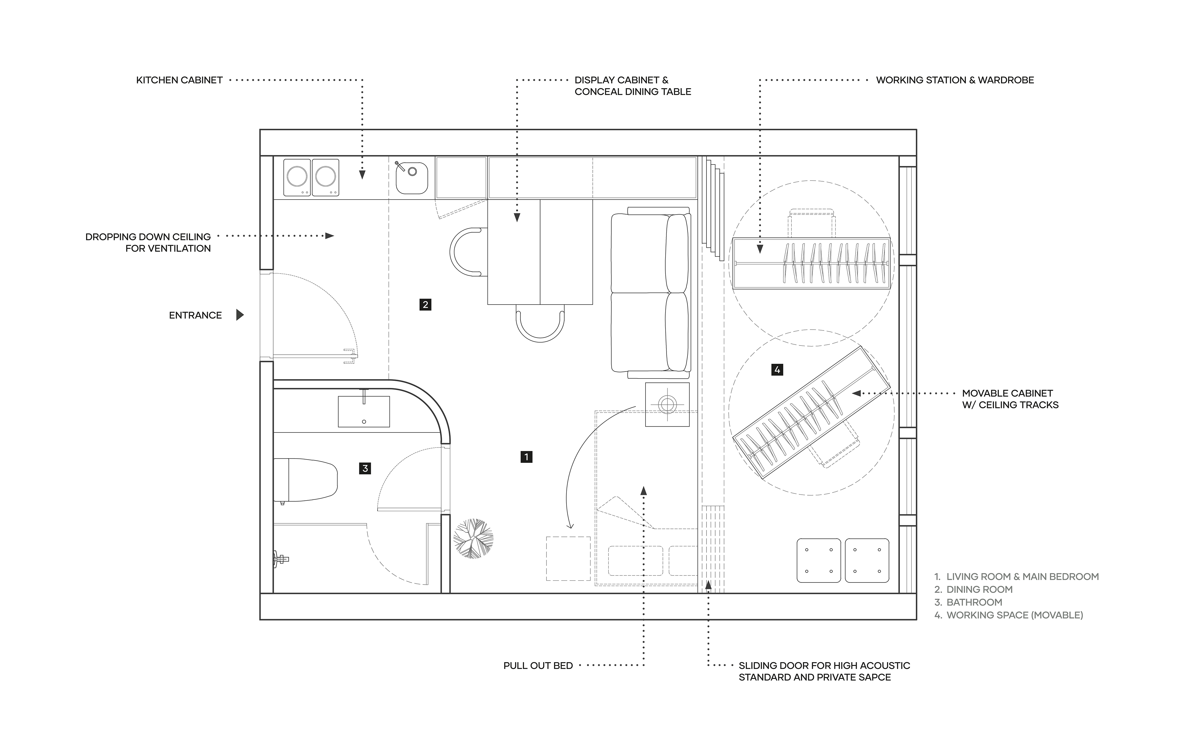
In the future, the living space will be designed to accommodate working from home. Residential units will be divided into two areas: the Resting Zone and the Working Zone.
在未來的生活空間中,大部分時間人們可以在家中工作。因此,一個住宅單位將被劃分為兩個區域。一個是休息區,另一個是工作區。
Open Working Space for interactive functions and open areas suitable for creative businesses like designers and artists.
開放式工作空間可為創意型企業如設計師、藝術家等提供互動功能和開放空間。
Semi-Open Working Space for those who require privacy and focus in their work.
半開放式工作空間可為需要專注和不受干擾工作的人提供私人空間。
Enclosed Working Space to create a clear separation between the working and living areas within a residential unit.
封閉式工作空間可在住宅單位內工作區和生活區之間提供獨立空間。
By incorporating flexible furniture arrangements, such as movable cabinets, the space can be transformed from a working area to a resting area after work hours.
通過移動櫥櫃到一側,它將從工作區變為休息區。因此,主人可以在工作後獲得更大的空間休息。
Finished one day’s work, the owners can adjust the sofa layout and pull out the bed from the platform in order to watch a nice movie and a nice sleep.
完成一天的工作後,主人可以調整沙發佈局,並從平台上拉出床,以觀看電影和舒適地休息。
Hybrid working brings flexibility on location, times, and days that work is carried out. Review and revise Work From Home policies and focus on what employees need to be productive in their roles.
混合工作帶來了在工作地點、時間和工作日上的靈活性。審查並修訂在家工作政策,並關注員工在其職位上提高生產力的需求。
Home working and co-working spaces will become more prevalent, but a central company workspace will still be necessary for meetings, collaborations, and fostering a sense of identity among the workforce. The future office will primarily consist of three essential areas: Working Area, Resting Area, and Meeting Area.
在家工作和共同工作空間將日益重要,但我們仍然需要一個中央公司工作空間,用於會議、合作,並給予員工一種身份感。另一方面,未來的工作空間是否仍然需要固定或私人辦公桌?不需要。我們只需要未來辦公室中的三個功能區域:工作區域、休息區域和會議區域。
混合工作是在多個地點靈活工作的新趨勢,提供沉浸式的工作空間和一致的體驗。
The concept of “shophouse,” which combines both a residence and a commercial business in a single building, has existed in old Hong Kong and Macau since the 1950s. The question arises: Can we apply the “shophouse” concept in future Hong Kong architecture?
「前舖後居」是一種同時作為住宅和商業業務的建築類型,「商店開在人行道上,也用作業主的住宅」,並自20世紀50年代開始成為常用術語。問題出現了:我們是否可以將「前舖後居」的概念應用於未來的香港建築?

In the hybrid working era, as we spend most of our time working from home and less time in the office, the need for traditional office buildings may diminish. Instead, the “shophouse” method can be considered, integrating living and working spaces within the same building.
在混合工作時代,由於我們大部分時間在家工作,很少在辦公室工作,對傳統辦公樓的需求可能會減少。相反,可以考慮採用「前舖後居」的方法,在同一建築中融合居住和工作空間。
The adoption of hybrid working can also lead to a more sustainable society, as working from home reduces the demand for extensive office spaces, allowing the government to allocate more resources to residential areas and green spaces like parks. In conclusion, hybrid working is the new normal, and it presents opportunities for creative architectural solutions that combine residential and office spaces while promoting sustainability in urban development.
採用混合工作還可以推動更可持續的社會發展,因為在家工作減少對大量辦公空間的需求,使政府能夠將更多資源分配到住宅區和綠色空間,如公園。混合工作已成為新常態,它為創造性的建築解決方案提供了機會,將住宅和辦公空間結合在一起,同時促進城市發展的可持續性。

Year : 2020
Type : Competition
Client : District15 & The Nate
Location : Hong Kong
Area : 375 sq.ft.
Status : Concept
Partner in Charge : Gavin Leung
Fellow in Charge : –
Project Leader : –
Design Team : –
Images : Bagua+Bhava & Internet
Visualisations : Bagua+Bhava
Awards : Winner of the Nate Competition
© Copyright 2024 Bagua+Bhava. All Rights Reserved.